Banner bip

Gmina Ozimek

woj. opolskie, pow. opolski

NIP: 754-00-22-173

Regon: Kod TERYT: 1609083

Adres: 46-040 Ozimek

ul. Ks. Jana Dzierżona 4B

Tel.: (+48) 77 462 28 00

e-mail: sekretariat[at]ugim.ozimek.pl

Zam. powyżej 30 000 euro

Ogłoszenie o przetargu nieograniczonym nr ZZP.271.03.2016.KS na zadanie pn.: Przebudowa i adaptacja budynku z przeznaczeniem na organizację i funkcjonowanie nowych 20 miejsc opieki w Żłobku Samorządowym w Ozimku

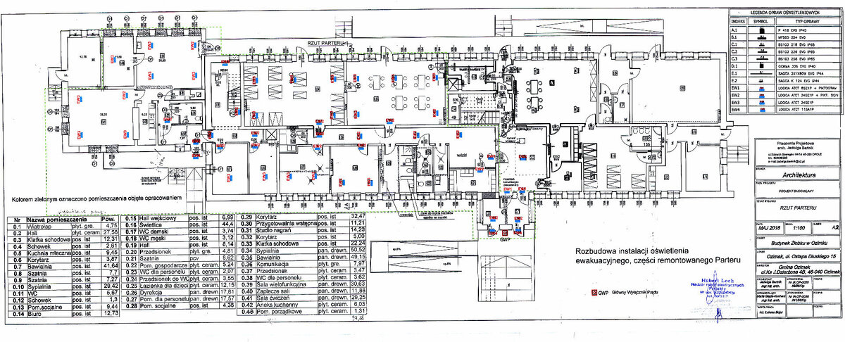
A1 Rozbudowa instalacji oświetlenia ewakuacyjnego
A1 Rozbudowa instalacji oświetlenia ewakuacyjnego
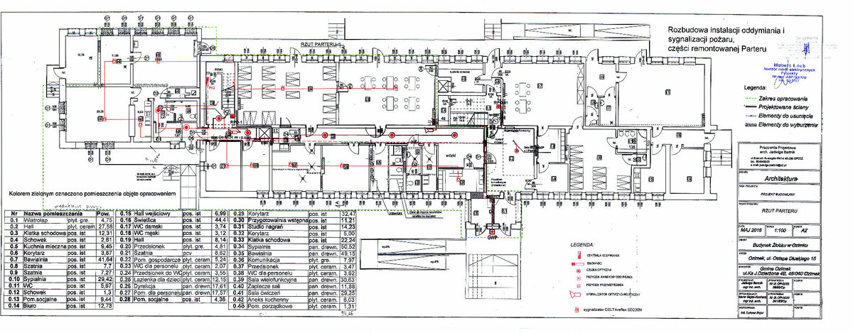
E2 Rozbudowa instalacji oddymiania i syg. p.poż
E2 Rozbudowa instalacji oddymiania i syg. p.poż

znak postępowania: ZZP.271.03.2016.KS

10.08.2016r. OGŁOSZENIE O WYBORZE NAJKORZYSTNIEJSZEJ OFERTY (ZAŁĄCZNIK)

1. 12.07.2016 - Zmiana treści SIWZ - zmiana terminu składania ofert: 26.07.2016r.

2. 22.07.2016 - zmiana treści SIWZ - zmiana terminu składania ofert: 28.07.2016r.

B U R M I S T R Z   O Z I M K A

ogłasza

przetarg nieograniczony

o szacunkowej wartości powyżej 30 000,00 euro na zadanie pn:

Przebudowa i adaptacja budynku z przeznaczeniem na organizację i funkcjonowanie nowych 20 miejsc opieki w Żłobku Samorządowym w Ozimku


Numer ogłoszenia: 126653 - 2016; data zamieszczenia: 08.07.2016
OGŁOSZENIE O ZAMÓWIENIU - roboty budowlane

Zamieszczanie ogłoszenia: obowiązkowe.

Ogłoszenie dotyczy:

V

zamówienia publicznego

zawarcia umowy ramowej

ustanowienia dynamicznego systemu zakupów (DSZ)

SEKCJA I: ZAMAWIAJĄCY

I. 1) NAZWA I ADRES: Gmina Ozimek , ul. Ks. J. Dzierżona 4B, 46-040 Ozimek, woj. opolskie, tel. 77 46 22 800, faks 77 46 22 811.

  • Adres strony internetowej zamawiającego: www.ozimek.pl

I. 2) RODZAJ ZAMAWIAJĄCEGO: Administracja samorządowa.

SEKCJA II: PRZEDMIOT ZAMÓWIENIA

II.1) OKREŚLENIE PRZEDMIOTU ZAMÓWIENIA

II.1.1) Nazwa nadana zamówieniu przez zamawiającego:Przebudowa i adaptacja budynku z przeznaczeniem na organizację i funkcjonowanie nowych 20 miejsc opieki w Żłobku Samorządowym w Ozimku.

II.1.2) Rodzaj zamówienia: roboty budowlane.

II.1.4) Określenie przedmiotu oraz wielkości lub zakresu zamówienia:1. Przedmiotem zamówienia jest przebudowa i adaptacja pomieszczeń zlokalizowanych na parterze budynku żłobka na pomieszczenia jednego oddziału dla 3 latków oraz zapewnienie ewakuacji osób z pomieszczeń budynku zgodnie z obowiązującymi przepisami p.poż. 2. Opis przedmiotu zamówienia składa się z następujących robót: a) roboty budowlane: -rozebranie elementów starej kotłowni węglowej (piec, czopuch, zbiornik c.w.) -powiększenie otworów okiennych 10sz. i wstawienie nowych okien 11szt. -wymiana i wstawienie stolarki drzwiowej drewnianej 19szt. oraz aluminiowej 4szt. -rozebranie okładzin ściennych z płytek 79,79m2 -rozebranie ścian z cegieł 13,86m3 -uzupełnienie ścian lub zamurowanie otworów 11,41m3 -rozebranie posadzek z płytek oraz tworzyw sztucznych 289,16m2 -wyrównanie podłoży betonowych 289,16m2 -wykonanie izolacji cieplnej, warstwy wyrównawczej oraz zbrojenie siatka 42,51m2 -ułożenie paneli podłogowych na piance 206.61m2 -wykonanie posadzek z płytek ceramicznych wraz z cokolikami 82,55m2 -uzupełnienie i wykonanie nowych tynków 220,3m2 -wykonanie sufitów podwieszanych 42,51m2 -licowanie ścian płytkami 166,78m2 -roboty malarskie 1014,57 m2 -wykonanie przedłużenia tarasu z blachy ryflowanej 7,35mb -wywóz i utylizacja gruzu b) roboty instalacji sanitarnych: -przełożenie szafki hydrantowej wraz z orurowaniem i podłączeniem 1kpl. -demontaż starej instalacji wod-kan 1kpl. -wykonanie rurociągów inst. wodociągowej 20mb wraz z podejściami 10szt. -wykonanie rurociągów inst. kanalizacyjnej 30mb wraz z podejściami 12szt. -montaż umywalki na postumencie wraz z bateria 1kpl. -montaż umywalki wraz z bateria dla niepełnosprawnych 1kpl. -montaż umywalek dla dzieci wraz z bateriami 3kpl. -montaż zlewu porządkowego z bateria 1kpl. -montaż zlewozmywaka z baterią 1kpl. -montaż ustępu typu kompakt 1kpl. -montaż ustępu dla niepełnosprawnych 1kpl -montaż ustępu dla dzieci 2kpl. -wykonanie rurociągu c.o. z podejściami 25mb -montaż grzejników stalowych z głowicami termostatycznymi 5kpl. -przestawienie grzejnika stalowego 1kpl. -likwidacja starego orurowanie 1kpl. -wywóz i utylizacja materiałów z rozbiórki 1kpl. c) roboty instalacji elektrycznych: -wykucie bruzd 2125mb. -ułożenie przewodów YDY 2125mb. -montaż puszek instalacyjnych 79szt -montaż łączników 34szt. -montaż gniazd 45szt. -montaż tablic rozdzielczych 3kpl. -montaż zabezpieczeń 2kpl. -montaż opraw oświetleniowych 77kpl. -montaż opraw ewakuacyjnych 52kpl. -wykonanie badań i pomiarów 1kpl. -montaż centrali oddymiania 1kpl. -montaż czujek pożarowych 8kpl. -montaż czujek dymu 11kpl. -montaż przewodów 170mb -podłączenie do istniejącej instalacji oddymiania i p.poż 1kpl. 3. Szczegółowy opis zawiera dokumentacja projektowa w części odnoszącej się do przedmiotu zamówienia (tj. branża sanitarna, budowlana i elektryczna) oraz specyfikacje techniczne wykonania i odbioru robót, które stanowią integralną cześć niniejszej SIWZ. 4. Do Specyfikacji zostały załączone przedmiary robót jako materiał pomocniczy do wykorzystania według uznania Wykonawcy. 5. Załączony przedmiar robót określa jedynie orientacyjny zakres robot przewidzianych do wykonania zamówienia, ułatwiając tym samym skalkulowanie ceny. Przedmiar nie stanowi podstawy do późniejszego rozliczenia umowy, ponieważ przyjęto w niej zasadę wynagrodzenia ryczałtowego, tj. cena umowy nie podlega zmianie w trakcie realizacji zamówienia. W cenie przedmiotu zamówienia należy uwzględnić wszystkie roboty, również nie ujęte w przedmiarze robót, a wynikające ze specyfiki i technologii robót. 6. Umożliwia się, aby Wykonawca, na własny koszt, dokonał wizji lokalnej terenu przyszłej inwestycji. W tym celu należy skontaktować się z Panem Jackiem Gintrem tel. 77 46 22 859 7. Wykonawca zobowiązany jest do udzielenia gwarancji na przedmiot umowy wynoszącej co najmniej 36 miesięcy, jednak nie więcej 60 miesięcy. 8. W przypadku wystąpienia w dokumentacji projektowej lub STWiOR materiałów i urządzeń, przy których są podane nazwy producenta, znaki towarowe lub pochodzenie, Zamawiający dopisuje do nich wyrazy lub równoważny. Jeżeli w dokumentacji projektowej lub specyfikacji technicznej wykonania i odbioru robót zostały wskazane znaki towarowe, patenty oraz pochodzenie urządzeń i materiałów - należy je traktować jako podane przykładowo i pomocniczo do sporządzania oferty. Jednakże proponowane i kalkulowane przez Wykonawców w ofercie urządzenia i materiały muszą posiadać nie gorsze parametry techniczne i jakościowe od opisanych w projekcie. 9. Operowanie przykładowymi nazwami producenta ma jedynie na celu doprecyzowanie poziomu oczekiwań zamawiającego w stosunku do określonego rozwiązania. Posługiwanie się nazwami producentów/produktów ma wyłącznie charakter przykładowy. Zamawiający, wskazując oznaczenie konkretnego producenta (dostawcy) lub konkretny produkt przy opisie przedmiotu zamówienia, dopuszcza jednocześnie produkty równoważne o parametrach jakościowych i cechach użytkowych co najmniej na poziomie parametrów wskazanego produktu, uznając tym samym każdy produkt o wskazanych lub lepszych parametrach. 10. Rozwiązania równoważne: a) Wszędzie tam, gdzie przedmiot zamówienia został opisany poprzez wskazanie znaków towarowych, patentów lub pochodzenia lub norm, aprobat, specyfikacji technicznych i systemów odniesienia, o których mowa w art. 30 ust. 1-3 Ustawy, Zamawiający dopuszcza oferowanie przez Wykonawcę materiałów lub rozwiązań równoważnych w stosunku do opisanych w dokumentacji projektowej, pod warunkiem, że nie obniżą określonych w dokumentacji projektowej standardów, będą posiadały wymagane odpowiednie atesty, certyfikaty lub dopuszczenia oraz zapewnią wykonanie zamówienia zgodnie z oczekiwaniami i wymaganiami Zamawiającego określonymi w SIWZ b) W przypadku, gdy Wykonawca zaproponuje rozwiązania równoważne, w tym materiały, urządzenia i inne elementy, zobowiązany jest wykonać i załączyć do oferty zestawienie wszystkich zaproponowanych rozwiązań równoważnych (np. materiałów, urządzeń oraz innych elementów równoważnych) i wykazać ich równoważność w stosunku do rozwiązań (np. materiału, urządzenia i innego elementu) opisanych w dokumentacji projektowej, ze wskazaniem nazwy, strony i pozycji w dokumentacji projektowej, których dotyczy. W przypadku, gdy Wykonawca nie złoży w ofercie takich dokumentów, to rozumie się przez to, że do kalkulacji ceny oferty ujęto materiały i rozwiązania zaproponowane w opisie przedmiotu zamówienia. c) Opis zaproponowanych rozwiązań równoważnych powinien być dołączony do oferty i musi być na tyle szczegółowy, żeby Zamawiający przy ocenie ofert mógł ocenić spełnienie wymagań dotyczących ich właściwości funkcjonalnych, jakościowych i parametrów oraz rozstrzygnąć, czy zaproponowane rozwiązania są równoważne. Oznacza to, że na Wykonawcy spoczywa obowiązek wykazania, że oferowane przez niego rozwiązania (np. materiały, urządzenia i inne elementy) są równoważne w stosunku do opisanych przez Zamawiającego. d) Rozwiązania wynikające z zastosowania przez Wykonawcę materiałów, urządzeń i innych elementów równoważnych nie mogą wywołać żadnych zmian układu funkcjonalnego i parametrów techniczno-użytkowych. 11. Zamawiający zastrzega sobie prawo wystąpienia do autora dokumentacji projektowej o opinię na temat oferowanych materiałów lub urządzeń równoważnych. Opinia ta może stanowić podstawę do podjęcia przez zamawiającego decyzji o przyjęciu materiałów lub urządzeń równoważnych albo odrzuceniu oferty z powodu braku równoważności. 12. Pod pojęciem parametry rozumie się w szczególności: funkcjonalność, przeznaczenie, kolorystykę, strukturę, rodzaj materiału, kształt, wielkość, bezpieczeństwo, wytrzymałość oraz pozostałe parametry przypisane poszczególnym materiałom i urządzeniom w dokumentacji projektowej oraz w szczegółowej specyfikacji technicznej. 13. Roboty będące przedmiotem zmówienia będą wykonane przy użyciu sprzętu, urządzeń i materiałów własnych wykonawcy o jakości odpowiadającej stosownym przepisom, normom, standardom i warunkom podanym w specyfikacji istotnych warunków zamówienia. 14. Roboty należy prowadzić zgodnie z obowiązującymi normami, warunkami technicznymi wykonania i odbioru, pod nadzorem technicznym, z zachowaniem obowiązujących przepisów bhp i ppoż. dla tego rodzaju robót budowlanych. 15. Do obowiązków Wykonawcy, o których mowa w §3 umowy nr ZZP.272.03.2016.KS będzie należało, w szczególności: a) wykonanie przedmiotu umowy z należytą starannością, zasadami sztuki budowlanej zgodnie z SIWZ, projektem, specyfikacjami technicznymi wykonania i odbioru robót oraz aktualnie obowiązującymi normami, prawem budowlanym i innymi obowiązującymi przepisami, oraz uzgodnieniami i opiniami właściwych organów i instytucji; b) użycia materiałów gwarantujących odpowiednią jakość, o parametrach technicznych i jakościowych określonych w dokumentacji projektowej; c) okazania na żądanie Zamawiającego certyfikaty zgodności z Polską Norma lub aprobata techniczną, deklaracji zgodności itp. w stosunku do wskazanych i zastosowanych materiałów; d) ubezpieczenia budowy od ryzyk budowlano - montażowych na kwotę nie niższą niż cena ofertowa (brutto) na okres realizacji przedmiotu umowy i przedłożenia w terminie 14 dni od podpisania umowy oryginału polisy na ubezpieczenie budowy od ryzyk budowlano - montażowych, na kwotę nie niższą niż Cena ofertowa (brutto) na czas realizacji przedmiotu umowy; e) protokolarnego przejęcia terenu budowy; f) uwzględniania specyfiki pracy w czynnych obiektach, w tym dostosowanie godzin pracy w godzinach popołudniowych - na wniosek inwestora; g) prowadzenia dziennika budowy, jeśli jest wymagany; h) poinformowania Zamawiającego o wadach w dokumentacji projektowej natychmiast po ich stwierdzeniu i dokona uzgodnień ewentualnych zmian projektowych w trakcie realizacji przedmiotu umowy; i) Zapewnienie kadry z niezbędnymi uprawnieniami do nadzoru robót; j) zagwarantowanie stałej obecności osoby zapewniającej nadzór techniczny nad realizowanym zadaniem, nadzór nad personelem w zakresie bhp, porządku i dyscypliny pracy; k) przestrzegania zakazu spożywania napojów alkoholowych; l) Koordynowanie prac realizowanych przez podwykonawców; m) zabezpieczenia terenu budowy z zachowaniem najwyższej staranności; n) zabezpieczenie dróg prowadzących do terenu budowy przed zniszczeniem spowodowanym środkami transportu Wykonawcy lub jego podwykonawców; o) zawiadomienia zamawiającego o zamiarze wykonania robót zanikających lub ulegających zakryciu z wyprzedzeniem ustalonym z inspektorem nadzoru; p) zabezpieczenia składowane tymczasowo na plac u budowy materiały i urządzenia do czasu ich wbudowania przed zniszczeniem, uszkodzeniem lub utratą jakości, właściwości lub parametrów, oraz udostępni do kontroli przez Inspektora nadzoru. q) niezwłocznego przekazania zamawiającemu dokumentacji powykonawczej wraz z dokumentami pozwalającymi na ocenę prawidłowego wykonania robót zgłaszanych do odbioru; r) zgłoszenia przedmiotu umowy do odbioru końcowego, uczestniczenia w czynnościach odbioru i zapewnienie usunięcia ewentualnych wad i usterek, s) dbania o należyty porządek na terenie budowy; t) sporządzenia planu Bezpieczeństwa i Ochrony Zdrowia na budowie (BIOZ), u) zapewnienia na własny koszt transportu odpadów do miejsc ich wykorzystania lub utylizacji, łącznie z kosztami utylizacji;.

II.1.5)

V

przewiduje się udzielenie zamówień uzupełniających:

  • Określenie przedmiotu oraz wielkości lub zakresu zamówień uzupełniających
  • Zamawiający przewiduje udzielenie zamówień uzupełniających na zasadach określonych w art. 67 ust.1 pkt 6 Ustawy - do 50 % wartości zadania podstawowego

II.1.6) Wspólny Słownik Zamówień (CPV): 45.00.00.00-7, 45.21.00.00-2, 45.31.12.00-2, 45.33.00.00-9, 45.40.00.00-1.

II.1.7) Czy dopuszcza się złożenie oferty częściowej: nie.

II.1.8) Czy dopuszcza się złożenie oferty wariantowej: nie.

 

II.2) CZAS TRWANIA ZAMÓWIENIA LUB TERMIN WYKONANIA: Zakończenie: 31.10.2016.

SEKCJA III: INFORMACJE O CHARAKTERZE PRAWNYM, EKONOMICZNYM, FINANSOWYM I TECHNICZNYM

III.1) WADIUM

Informacja na temat wadium:1. Wysokość wadium Wykonawca zobowiązany jest wnieść wadium w wysokości: 10.000 zł (słownie: dziesięć tysięcy złotych). 2. Forma wadium Wadium może być wniesione w jednej lub kilku następujących formach: 1) pieniądzu; 2) poręczeniach bankowych lub poręczeniach spółdzielczej kasy oszczędnościowo - kredytowej, gwarancjach z tym, że poręczenie kasy jest zawsze poręczeniem pieniężnym; 3) gwarancjach bankowych; 4) gwarancjach ubezpieczeniowych; 5) poręczeniach udzielanych przez podmioty, o których mowa w art. 6b ust. 5 pkt 2 ustawy z dnia 9 listopada 2000 r. o utworzeniu Polskiej Agencji Rozwoju Przedsiębiorczości. 3. Miejsce, sposób i termin wniesienia wadium. 1) wadium wnoszone w pieniądzu wpłaca się wyłącznie przelewem na rachunek bankowy Zamawiającego BANK SPÓŁDZIELCZY LEŚNICA ODDZIAŁ OZIMEK Nr rachunku 78 8907 1050 2004 3000 1010 0007 - na przelewie należy umieścić informację: Przebudowa Żłobka. 2) wadium w pozostałych akceptowanych formach należy składać w oryginale w osobnej kopercie razem z ofertą; 3) do oferty należy dołączyć kserokopię potwierdzoną za zgodność z oryginałem wnoszonego wadium. 4) wadium należy wnieść przed upływem terminu składania ofert. 5) W przypadku wadium wnoszonego w pieniądzu termin jego wniesienia Zamawiający będzie uważał za zachowany, jeżeli kwota wadium wpłynie na podany wyżej rachunek Zamawiającego przed upływem terminu składania ofert. W sprawach spornych bank prowadzący rachunek Zamawiającego potwierdzi, czy otrzymał wadium przed upływem terminu składania ofert. 6) w przypadku składania przez Wykonawcę wadium w formie gwarancji, gwarancja powinna być sporządzona zgodnie z obowiązującym prawem. 7) W treści wadium składanego w formie innej niż pieniądz muszą być wyszczególnione okoliczności, o których mowa w rozdz. IX pkt 7 SIWZ, w jakich Zamawiający zatrzymuje wadium wraz z odsetkami. Wadium w formach wymienionych w pkt 2 od 2) do 5) musi być wystawione na Zamawiającego.Z treści gwarancji (poręczenia) musi jednoznacznie wynikać, jaki jest sposób reprezentacji Gwaranta (poręczyciela). Gwarancja musi być podpisana przez upoważnionego (upełnomocnionego) przedstawiciela Gwaranta (poręczyciela). Podpis winien być sporządzony w sposób umożliwiający jego identyfikację np. złożony wraz z imienną pieczątką lub czytelny (z podaniem imienia i nazwiska). Z treści gwarancji winno wynikać nieodwołalne i bezwarunkowe zobowiązanie Gwaranta (poręczyciela) do wypłaty Zamawiającemu pełnej kwoty wadium w okolicznościach określonych w art. 46 ust. 4a i ust. 5 Ustawy, na każde pierwsze pisemne żądanie zgłoszone przez Zamawiającego w terminie związania ofertą. 8) Gwarancja (poręczenie) nie może zawierać zastrzeżenia gwaranta (poręczyciela), że pisemne żądanie zapłaty musi być przedstawione tylko za pośrednictwem Banku prowadzącego rachunek Zamawiającego, w celu potwierdzenia, że podpisy złożone na pisemnym żądaniu należą do osób uprawnionych do zaciągania zobowiązań majątkowych w imieniu Zamawiającego. Gwarancja (poręczenie) musi być egzekwowalna i wykonalna na terytorium Rzeczpospolitej Polskiej, podlegać prawu polskiemu, a w sporach z gwarancji wyłącznie właściwy musi być Sąd Powszechny siedziby Zamawiającego.

III.2) ZALICZKI

III.3) WARUNKI UDZIAŁU W POSTĘPOWANIU ORAZ OPIS SPOSOBU DOKONYWANIA OCENY SPEŁNIANIA TYCH WARUNKÓW

  • III. 3.1) Uprawnienia do wykonywania określonej działalności lub czynności, jeżeli przepisy prawa nakładają obowiązek ich posiadania

Opis sposobu dokonywania oceny spełniania tego warunku

    • Zamawiający nie opisuje sposobu dokonywania oceny spełnienia przedmiotowego warunku, ponieważ nie ma on zastosowania w niniejszym postępowaniu.
  • III.3.2) Wiedza i doświadczenie

Opis sposobu dokonywania oceny spełniania tego warunku

    • warunek zostanie uznany za spełniony, jeżeli wykonawca wykaże, że w okresie ostatnich pięciu lat przed upływem terminu składania ofert, a jeżeli okres prowadzenia działalności jest krótszy - w tym okresie należycie i zgodnie ze sztuką budowlaną wykonał oraz prawidłowo ukończył przynajmniej dwie roboty budowlane w zakresie budowy, przebudowy, remontu lub adaptacji obiektów, pomieszczeń wraz z instalacjami wewnętrznymi o wartości min. 200 000,00 zł. brutto każda. (warunek winien być spełniony przez jednego wykonawcę w przypadku oferty wspólnej lub podwykonawstwa) Zamawiający oceni spełnianie warunku na podstawie przedłożonego wraz z ofertą: -wykazu robót budowlanych wykonanych w okresie ostatnich pięciu lat przed upływem terminu składania ofert, a jeżeli okres prowadzenia działalności jest krótszy - w tym okresie, wraz z podaniem ich rodzaju i wartości, daty i miejsca wykonania oraz z załączeniem dowodów dotyczących najważniejszych robót, określających, czy roboty te zostały wykonane w sposób należyty oraz wskazujących, czy zostały wykonane zgodnie z zasadami sztuki budowlanej i prawidłowo ukończone - załącznik nr 4 do oferty
  • III.3.3) Potencjał techniczny

Opis sposobu dokonywania oceny spełniania tego warunku

    • Zamawiający nie opisuje sposobu dokonywania oceny spełnienia przedmiotowego warunku w sposób szczególny
  • III.3.4) Osoby zdolne do wykonania zamówienia

Opis sposobu dokonywania oceny spełniania tego warunku

    • warunek zostanie uznany za spełniony, jeżeli Wykonawca wykaże, że dysponuje: -co najmniej jedną osobą posiadającą uprawnienia budowlane do kierowania robotami budowlanymi w specjalności konstrukcyjno-budowlana bez ograniczeń; -co najmniej jedną osobą posiadającą uprawnienia budowlane w specjalności instalacyjnej w zakresie sieci, instalacji i urządzeń elektrycznych i elektroenergetycznych bez ograniczeń; -co najmniej jedną osobą posiadającą uprawnienia budowlane w specjalności instalacyjnej w zakresie sieci, instalacji i urządzeń cieplnych, wentylacyjnych, gazowych, wodociągowych i kanalizacyjnych Zamawiający oceni spełnianie warunku na podstawie przedłożonych wraz z ofertą: -wykazu osób, które będą uczestniczyć w wykonywaniu zamówienia, w szczególności odpowiedzialnych za świadczenie usług, kontrolę jakości lub kierowanie robotami budowlanymi, wraz z informacjami na temat ich kwalifikacji zawodowych, doświadczenia i wykształcenia niezbędnych do wykonania zamówienia, a także zakresu wykonywanych przez nie czynności oraz informacją o podstawie do dysponowania tymi osobami - załącznik nr 5 do oferty -oświadczenia, że osoby, które będą uczestniczyć w wykonywaniu zamówienia posiadają wymagane uprawnienia, jeżeli ustawy nakładają obowiązek posiadania takich uprawnień - załącznik nr 6 do oferty UWAGA: Zamawiający, określając wymogi w zakresie posiadanych uprawnień budowlanych, dopuszcza odpowiadające im uprawnienia budowlane, które zostały wydane na podstawie wcześniej obowiązujących przepisów oraz odpowiadające im uprawnienia wydane obywatelom państw Europejskiego Obszaru Gospodarczego oraz Konfederacji Szwajcarskiej, z zastrzeżeniem art. 12a oraz innych przepisów ustawy Prawo Budowlane oraz ustawy o zasadach uznawania kwalifikacji zawodowych nabytych w państwach członkowskich Unii Europejskiej.
  • III.3.5) Sytuacja ekonomiczna i finansowa

Opis sposobu dokonywania oceny spełniania tego warunku

  • warunek zostanie uznany za spełniony, jeśli Wykonawca wykaże, że posiada opłaconą (w dacie złożenia oferty) polisę, a w przypadku jej braku inny dokument potwierdzający, że Wykonawca jest ubezpieczony od odpowiedzialności cywilnej w zakresie prowadzonej działalności związanej z przedmiotem zamówienia na kwotę min. 300 000,00 zł. brutto. Zamawiający oceni spełnianie warunku na podstawie przedłożonej wraz z ofertą: -opłaconej polisy, a w przypadku jej braku innego dokumentu potwierdzającego, że Wykonawca jest ubezpieczony od odpowiedzialności cywilnej w zakresie prowadzonej działalności związanej z przedmiotem zamówienia. UWAGA! należy załączyć dowód opłacenia polisy ważny na dzień składania ofert

III.4) INFORMACJA O OŚWIADCZENIACH LUB DOKUMENTACH, JAKIE MAJĄ DOSTARCZYĆ WYKONAWCY W CELU POTWIERDZENIA SPEŁNIANIA WARUNKÓW UDZIAŁU W POSTĘPOWANIU ORAZ NIEPODLEGANIA WYKLUCZENIU NA PODSTAWIE ART. 24 UST. 1 USTAWY

III.4.1) W zakresie wykazania spełniania przez wykonawcę warunków, o których mowa w art. 22 ust. 1 ustawy, oprócz oświadczenia o spełnianiu warunków udziału w postępowaniu należy przedłożyć:

  • wykaz robót budowlanych wykonanych w okresie ostatnich pięciu lat przed upływem terminu składania ofert albo wniosków o dopuszczenie do udziału w postępowaniu, a jeżeli okres prowadzenia działalności jest krótszy - w tym okresie, wraz z podaniem ich rodzaju i wartości, daty i miejsca wykonania oraz z załączeniem dowodów dotyczących najważniejszych robót, określających, czy roboty te zostały wykonane w sposób należyty oraz wskazujących, czy zostały wykonane zgodnie z zasadami sztuki budowlanej i prawidłowo ukończone;
  • wykaz osób, które będą uczestniczyć w wykonywaniu zamówienia, w szczególności odpowiedzialnych za świadczenie usług, kontrolę jakości lub kierowanie robotami budowlanymi, wraz z informacjami na temat ich kwalifikacji zawodowych, doświadczenia i wykształcenia niezbędnych do wykonania zamówienia, a także zakresu wykonywanych przez nie czynności, oraz informacją o podstawie do dysponowania tymi osobami;
  • oświadczenie, że osoby, które będą uczestniczyć w wykonywaniu zamówienia, posiadają wymagane uprawnienia, jeżeli ustawy nakładają obowiązek posiadania takich uprawnień;
  • opłaconą polisę, a w przypadku jej braku, inny dokument potwierdzający, że wykonawca jest ubezpieczony od odpowiedzialności cywilnej w zakresie prowadzonej działalności związanej z przedmiotem zamówienia.

Wykonawca powołujący się przy wykazywaniu spełnienia warunków udziału w postępowaniu, o których mowa w art. 22 ust. 1 pkt 4 ustawy, na zasoby innych podmiotów przedkłada następujące dokumenty dotyczące podmiotów, zasobami których będzie dysponował wykonawca:

  • opłaconą polisę, a w przypadku jej braku, inny dokument potwierdzający, że inny podmiot jest ubezpieczony od odpowiedzialności cywilnej w zakresie prowadzonej działalności związanej z przedmiotem zamówienia;

III.4.2) W zakresie potwierdzenia niepodlegania wykluczeniu na podstawie art. 24 ust. 1 ustawy, należy przedłożyć:

  • oświadczenie o braku podstaw do wykluczenia;
  • aktualny odpis z właściwego rejestru lub z centralnej ewidencji i informacji o działalności gospodarczej, jeżeli odrębne przepisy wymagają wpisu do rejestru lub ewidencji, w celu wykazania braku podstaw do wykluczenia w oparciu o art. 24 ust. 1 pkt 2 ustawy, wystawiony nie wcześniej niż 6 miesięcy przed upływem terminu składania wniosków o dopuszczenie do udziału w postępowaniu o udzielenie zamówienia albo składania ofert;
  • aktualne zaświadczenie właściwego naczelnika urzędu skarbowego potwierdzające, że wykonawca nie zalega z opłacaniem podatków, lub zaświadczenie, że uzyskał przewidziane prawem zwolnienie, odroczenie lub rozłożenie na raty zaległych płatności lub wstrzymanie w całości wykonania decyzji właściwego organu - wystawione nie wcześniej niż 3 miesiące przed upływem terminu składania wniosków o dopuszczenie do udziału w postępowaniu o udzielenie zamówienia albo składania ofert;
  • aktualne zaświadczenie właściwego oddziału Zakładu Ubezpieczeń Społecznych lub Kasy Rolniczego Ubezpieczenia Społecznego potwierdzające, że wykonawca nie zalega z opłacaniem składek na ubezpieczenia zdrowotne i społeczne, lub potwierdzenie, że uzyskał przewidziane prawem zwolnienie, odroczenie lub rozłożenie na raty zaległych płatności lub wstrzymanie w całości wykonania decyzji właściwego organu - wystawione nie wcześniej niż 3 miesiące przed upływem terminu składania wniosków o dopuszczenie do udziału w postępowaniu o udzielenie zamówienia albo składania ofert;
  • wykonawca powołujący się przy wykazywaniu spełniania warunków udziału w postępowaniu na zasoby innych podmiotów, które będą brały udział w realizacji części zamówienia, przedkłada także dokumenty dotyczące tego podmiotu w zakresie wymaganym dla wykonawcy, określonym w pkt III.4.2.

III.4.3) Dokumenty podmiotów zagranicznych

Jeżeli wykonawca ma siedzibę lub miejsce zamieszkania poza terytorium Rzeczypospolitej Polskiej, przedkłada:

III.4.3.1) dokument wystawiony w kraju, w którym ma siedzibę lub miejsce zamieszkania potwierdzający, że:

  • nie otwarto jego likwidacji ani nie ogłoszono upadłości - wystawiony nie wcześniej niż 6 miesięcy przed upływem terminu składania wniosków o dopuszczenie do udziału w postępowaniu o udzielenie zamówienia albo składania ofert;
  • nie zalega z uiszczaniem podatków, opłat, składek na ubezpieczenie społeczne i zdrowotne albo że uzyskał przewidziane prawem zwolnienie, odroczenie lub rozłożenie na raty zaległych płatności lub wstrzymanie w całości wykonania decyzji właściwego organu - wystawiony nie wcześniej niż 3 miesiące przed upływem terminu składania wniosków o dopuszczenie do udziału w postępowaniu o udzielenie zamówienia albo składania ofert;

III.4.4) Dokumenty dotyczące przynależności do tej samej grupy kapitałowej

  • lista podmiotów należących do tej samej grupy kapitałowej w rozumieniu ustawy z dnia 16 lutego 2007 r. o ochronie konkurencji i konsumentów albo informacji o tym, że nie należy do grupy kapitałowej;

III.6) INNE DOKUMENTY

Inne dokumenty niewymienione w pkt III.4) albo w pkt III.5)

1) dowód wniesienia wadium w formie pieniężnej (kopia przelewu) lub kserokopia potwierdzona za zgodność z oryginałem dowodu wniesienia wadium w innej formie niż pieniądz (oryginał należy załączyć do oferty w osobnej kopercie) 2) jeżeli Wykonawcy składają wspólną ofertę - dokument ustanawiający Pełnomocnika do reprezentowania ich w postępowaniu o udzielenie zamówienia albo reprezentowania w postępowaniu i zawarcia umowy w sprawie niniejszego zamówienia publicznego; Pełnomocnictwo należy dołączyć w oryginale bądź kopii poświadczonej notarialnie. 3) jeżeli oferta jest podpisana przez osobę inną niż wymienioną w odpowiednim rejestrze do reprezentacji wykonawcy - pełnomocnictwo określające jego zakres oraz podpisane przez osoby uprawnione do reprezentacji Wykonawcy; Pełnomocnictwo należy dołączyć w oryginale bądź kopii poświadczonej notarialnie. 4) jeżeli Wykonawca wykazując spełnianie warunków, o których mowa w art. 22 ust 1 ustawy polega na zasobach innych podmiotów na zasadach określonych w art. 26 ust 2b ustawy razem z ofertą składa: -zobowiązanie tych podmiotów do oddania Wykonawcy do dyspozycji niezbędnych zasobów na potrzeby wykonania zamówienia -w odniesieniu do tych podmiotów dokumenty wymienione w pkt 2 niniejszego rozdziału, jeżeli podmioty te będą brały udział w realizacji części zamówienia przedkłada, -opłaconą polisę, a w przypadku jej braku inny dokument potwierdzający, że podmiot udostępniający zasoby jest ubezpieczony od odpowiedzialności cywilnej w zakresie prowadzonej działalności związanej z przedmiotem zamówienia, jeżeli Wykonawca polega na zasobach innych podmiotów na zasadach określonych w art. 26 ust. 2b w celu wykazania spełniania warunków określonych w rozdziale VI pkt 4 (warunek ekonomiczny i finansowy). Dokument jest niezbędny dla Zamawiającego w celu oceny, czy wykonawca będzie dysponował zasobami innych podmiotów w stopniu niezbędnym dla należytego wykonania zamówienia oraz oceny, czy stosunek łączący wykonawcę z tymi podmiotami gwarantuje rzeczywisty dostęp do ich zasobów. 6) Zamawiający w celu oceny, czy wykonawca będzie dysponował zasobami innych podmiotów w stopniu niezbędnym dla należytego wykonania zamówienia oraz oceny, czy stosunek łączący wykonawcę z tymi podmiotami gwarantuje rzeczywisty dostęp do ich zasobów, może żądać dokumentów dotyczących w szczególności: -zakresu dostępnych wykonawcy zasobów innego podmiotu, -sposobu wykorzystania zasobów innego podmiotu, przez wykonawcę, przy wykonywaniu zamówienia, -charakteru stosunku, jaki będzie łączył wykonawcę z innym podmiotem, -zakresu i okresu udziału innego podmiotu przy wykonywaniu zamówienia. Zamawiający zażąda w/w dokumentów w przypadku gdy wykonawca nie udowodni w wystarczający sposób dysponowania zasobami innego podmiotu zgodnie z art. 26 ust. 2b ustawy. 6. Inne dokumenty jakie należy dostarczyć Zamawiającemu przed podpisaniem umowy: a) kserokopii uprawnień wraz aktualnym zaświadczeniem o przynależności do odpowiedniej Izby osób wskazanych w wykazie osób (załącznik nr 5) b) dokumentu potwierdzającego wniesienie zabezpieczenia należytego wykonania umowy c) kosztorysu sporządzony w formie szczegółowej, wskazujący wyliczenie ceny ofertowej podanej w ofercie. d) Oświadczenie kierownika budowy o przejęciu obowiązków kierownika w związku z realizacją przedmiotowej inwestycji. e) Aktualną opłaconą polisę od odpowiedzialności cywilnej w zakresie prowadzonej działalności gospodarczej (w przypadku wygaśnięcia złożonej polisy przedstawionej w ofercie). f) Zamawiający wymaga, aby Wykonawca w trakcie realizacji zadania przed wygaśnięciem przedłożonej polisy dostarczył kolejną obejmującą cały okres realizacji zadania. g) W przypadku Wykonawców wspólnie ubiegających się o udzielenie zamówienia przed podpisaniem umowy zobowiązany jest do przedłożenia umowy regulującej współpracę Wykonawców wspólnie ubiegających się o udzielenie zamówienia.

SEKCJA IV: PROCEDURA

IV.1) TRYB UDZIELENIA ZAMÓWIENIA

IV.1.1) Tryb udzielenia zamówienia: przetarg nieograniczony.

IV.2) KRYTERIA OCENY OFERT

IV.2.1) Kryteria oceny ofert: cena oraz inne kryteria związane z przedmiotem zamówienia:

  • 1 - Cena - 90
  • 2 - OKRES GWARANCJI - 10

IV.2.2)

 

przeprowadzona będzie aukcja elektroniczna, adres strony, na której będzie prowadzona:

IV.3) ZMIANA UMOWY

przewiduje się istotne zmiany postanowień zawartej umowy w stosunku do treści oferty, na podstawie której dokonano wyboru wykonawcy:

Dopuszczalne zmiany postanowień umowy oraz określenie warunków zmian

1. Wzór umowy stanowi część III niniejszej SIWZ. 2. Na podstawie treści art. 144 ustawy Pzp zakazuje się istotnych zmian postanowień zawartej umowy w stosunku do treści oferty, na podstawie której dokonano wyboru wykonawcy, za wyjątkiem przypadków określonych w niniejszej specyfikacji w tym w szczególności wystąpienia co najmniej jednej z okoliczności wymienionych poniżej, z uwzględnieniem podawanych warunków ich wprowadzenia: a) zmiana lub rezygnacja z podwykonawcy, jeśli dotyczy podmiotu, o którym mowa w art. 26 ust. 2b Pzp, na inny pod warunkiem udowodnienia Zamawiającemu, że nowy podmiot spełnia warunki udziału określone w niniejszym w postępowaniu, b) wprowadzenie podwykonawcy pomimo, że w ofercie Wykonawca nie przedstawił zakresu robót, które powierzy podwykonawcy, c) zmiany zakresu robót przeznaczonych do wykonania przez Podwykonawcę, d) zmiana wynagrodzenia, w przypadku ustawowej zmiany stawki VAT. e) Obniżenia wartości wynagrodzenia umownego w przypadku gdy zakres prac opisany w dokumentacji przetargowej ze względów technicznych, ekonomicznych lub formalno - prawnych nie będzie konieczny do wykonania, f) termin realizacji - w przypadku: -przedłużenia z przyczyn niezależnych od Wykonawcy czasu wydania decyzji administracyjnych przez właściwe organy lub inne podmioty w stosunku do terminów wynikających z obowiązujących przepisów prawa, jeżeli uniemożliwia to lub wstrzymuje w istotny sposób realizację robót. -konieczności usunięcia błędów, wad lub wprowadzenia zmian w specyfikacji technicznej wykonania i odbioru robót i dokumentacji technicznej; -rezygnacji z wykonania części robót i wykonanie robót zamiennych oraz wynikającej z tej zmiany wartości wynagrodzenia umownego, -konieczności przerwania robót ze względu na niekorzystne warunki atmosferyczne, uniemożliwiające prowadzenie robót zgodnie ze specyfikacją techniczną, -konieczności usuwania kolizji, usterek, awarii, napraw uzbrojenia podziemnego, nadziemnego bądź urządzeń przez ich użytkowników, co może uniemożliwić terminową realizację zadania, -wstrzymania robót, z przyczyn niezależnych od Wykonawcy, przez uprawniony organ, -wystąpienia sytuacji niemożliwej do przewidzenia w chwili zawarcia umowy, a mającej wpływ na realizację robót. -Skrócenia terminu realizacji przedmiotu umowy - na wniosek Wykonawcy, g) Zamawiający dopuszcza wprowadzenie zamiany materiałów i urządzeń przedstawionych w ofercie przetargowej pod warunkiem, że zmiany te będą korzystne dla Zamawiającego. Będą to, przykładowo, okoliczności: -powodujące obniżenie kosztu ponoszonego przez Zamawiającego na eksploatację i konserwację wykonanego przedmiotu umowy; -powodujące poprawienie parametrów technicznych; -wynikające z aktualizacji rozwiązań z uwagi na postęp technologiczny lub zmiany obowiązujących przepisów. h) Zmiany przepisów prawa istotnych dla postanowień niniejszej umowy, i) Zmiany przepisów prawa w trakcie realizacji zamówienia, powodujących konieczność dostosowania dokumentacji j) Niezawinionych przez Wykonawcę opóźnień w uzyskaniu pozwolenia na użytkowanie i uruchomienie obiektu, k) zmiany osobowe - zmiana osób, przy pomocy których Wykonawca realizuje przedmiot umowy na inne legitymujące się co najmniej równoważnymi uprawnieniami, o których mowa w ustawie Prawo budowlane lub innych ustawach, w szczególności kierownika budowy. l) Zmiana umowy w związku z przekształceniem firmy lub wynikające z następstwa prawnego, zgodnie z obowiązującymi przepisami. Warunkiem zmiany umowy będzie udokumentowany wniosek Stron umowy, a zmiana może nastąpić w przypadku, gdy jej wprowadzenie jest konieczne dla prawidłowej realizacji zamówienia, a Strony umowy wyrażą zgodę.

IV.4) INFORMACJE ADMINISTRACYJNE

IV.4.1) Adres strony internetowej, na której jest dostępna specyfikacja istotnych warunków zamówienia: www.bip.ozimek.pl
Specyfikację istotnych warunków zamówienia można uzyskać pod adresem: Urząd Gminy i Miasta w Ozimku 46 -040 Ozimek ul. ks. Jana Dzierżona 4 B pok. 100 I piętro.

IV.4.4) Termin składania wniosków o dopuszczenie do udziału w postępowaniu lub ofert:

 

25.07.2016 godzina 10:00,

miejsce: Urząd Gminy i Miasta w Ozimku 46 -040 Ozimek ul. ks. Jana Dzierżona 4 B

BIURO PODAWCZE.

IV.4.5) Termin związania ofertą: okres w dniach: 30 (od ostatecznego terminu składania ofert).

IV.4.16) Informacje dodatkowe, w tym dotyczące finansowania projektu/programu ze środków Unii Europejskiej: Projekt finansowany z Resortowego Programu rozwoju instytucji opieki nad dziećmi w wieku do lat 3 Maluch - edycja 2016 Zamawiający nie przewiduje zawarcia umowy ramowej. Zamawiający nie przewiduje przeprowadzenia aukcji elektronicznej. Zamawiający nie ustanawia dynamicznego systemu zakupów.

IV.4.17) Czy przewiduje się unieważnienie postępowania o udzielenie zamówienia, w przypadku nieprzyznania środków pochodzących z budżetu Unii Europejskiej oraz niepodlegających zwrotowi środków z pomocy udzielonej przez państwa członkowskie Europejskiego Porozumienia o Wolnym Handlu (EFTA), które miały być przeznaczone na sfinansowanie całości lub części zamówienia: nie

 

Zamawiający nie przewiduje:

− zawarcia umowy ramowej,

− ustanowienia dynamicznego systemu zakupów.

 

Z – ca Burmistrza Ozimka

/-/Jarosław Wita

Metryka dokumentu:
data wytworzenia informacji b/d
opublikowała Katarzyna Szewczyk
stanowisko Kierownik Referatu
tel. 77 462 28 69
data publikacji 2016-07-08 12:37
data ostatniej aktualizacji 2016-08-10 10:15
aktualizacja dokonana przez Katarzyna Szewczyk

Data zmiany Zmodyfikował Czynność
2016-08-10 10:15 Katarzyna Szewczyk modyfikacja treści
2016-07-22 09:29 Katarzyna Szewczyk modyfikacja treści
2016-07-22 09:27 Katarzyna Szewczyk modyfikacja treści
2016-07-12 12:43 Katarzyna Szewczyk modyfikacja treści
2016-07-08 13:10 Katarzyna Szewczyk modyfikacja treści
2016-07-08 13:09 Katarzyna Szewczyk modyfikacja treści
2016-07-08 13:06 Katarzyna Szewczyk modyfikacja treści
2016-07-08 13:03 Katarzyna Szewczyk modyfikacja treści
2016-07-08 13:01 Katarzyna Szewczyk modyfikacja treści
2016-07-08 12:55 Katarzyna Szewczyk modyfikacja treści
2016-07-08 12:48 Katarzyna Szewczyk modyfikacja treści
2016-07-08 12:44 Katarzyna Szewczyk modyfikacja treści
2016-07-08 12:42 Katarzyna Szewczyk modyfikacja treści
2016-07-08 12:41 Katarzyna Szewczyk publikacja treści